ERWEITERUNG EFH M&M | unitat architekten | unitat architekten
Erweiterung
Einfamilienhaus M&M
LPH . 1 – 3
FERTIGSTELLUNG . 2019
AUFTRAGGEBER . PRIVAT
Ein Haus für mehrere Generationen
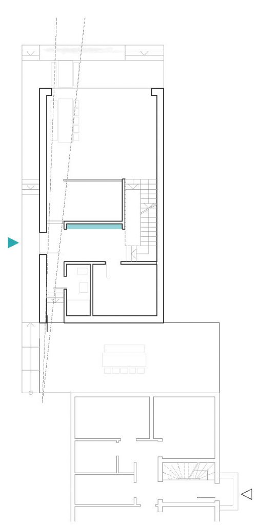
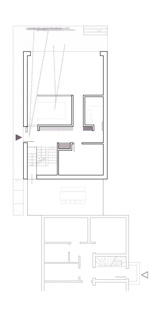
Auf einem Grundstück mit einem angrenzenden Bachlauf in Dreieich, soll an das bestehende 2-Familienwohnhaus eine Erweiterung konzipiert werden.
Mittels einer Fuge wird dem Bestand ein weiteres Haus zugefügt.
Dabei sind die Blickbeziehungen und die Öffnung zum Garten wichtige Konzeptkomponenten. Die Form des Bestandes, als auch die Dachneigung finden sich in dem Neubau wieder.
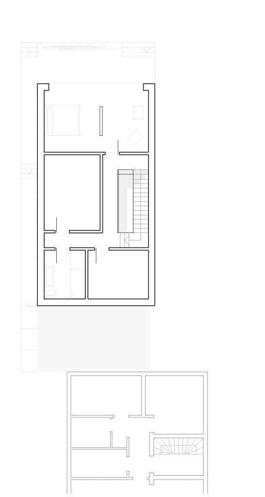
Die Fuge ist ein eingeschossiger Flachdach-Bau und wird als Versammlungsort und Treffpunkt für die verschiedenen Generationen angedacht.
Der Neubau als solches gliedert sich in den leicht abfallenden Garten ein. Durch verschiedene Konzepte wurde die Hanglage des Grundstücks aufgenommen und dargestellt. Die Grundrisse weisen in Ihrer Raumaufteilung die gewünschte Großzügigkeit auf und ordnen sich zum Garten hin.








